极简的无损加装床车
短轴低顶车型因为有了不允许拆卸的后排座椅,加装床并不容易。
后备箱长约135厘米,宽约172厘米。若后排座椅背靠放平,座椅高度有56厘米,纵向床留给上部的空间不足以让上身伸直,横向床(靠椅背卡扣)反而变窄。若后排座椅完全前倾,两排之间的空间被椅子完全占去,常用物品和大物件只能置于床板之下,拿取甚为不便,这个布局只能是高个子床纵置的必然选项。结合实际情况(矮个子)选择按原状将后备箱加装横向床铺。
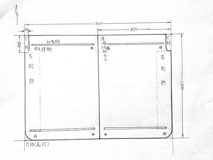
然而,后备箱地板前有C柱凸出,宽度只有160厘米,中有轮拱,各占宽18厘米,后有尾灯柱,不是一个规则的四边形,必须加高至轮拱高度(30厘米)以上,为便于放置整理箱,确定床高40厘米,横向170厘米,纵向120厘米,床横置靠后排座椅背放置,纵向对开便于叠放收纳。
工具:角磨机(带切割片、木锯片、3mm左右钻头、砂轮片),十字螺丝刀
材料:1块厚13~20毫米实木板(切割成120X85厘米2块),4条长65厘米30镀锌角钢,带内丝法兰盘(3或4孔)8个(无6分塑料或橡胶软套头时需16个),相应配15mm自攻螺丝。带丝6分镀锌钢管8根,每根长40厘米。或4.6米(1.7X2+1.2)包边防磕胶条。
制作:
1、设计图纸。
2、材料采购,万能的购物网。
3、自加工,板材:C、D柱处切割,棱、角、面修圆润打磨;C柱处的直线面直接锯割,内圆弧沿弧线钻孔,掰断,用砂轮片磨圆;D柱处弧面靠尾部需要较大修整;角钢两端直立面最好斜切割掉三角形钢皮(见照片二),每10厘米钻孔,边角磨圆。
4、按图装配,车内拼装后检查四周间隙,留5~10毫米左右空(安装胶条或床单压边避免木板磕伤车体)。
费用:包含工具在内的所有物件总额不超过400元,工具和床料可以分别控制在200元以内。
制作时间:1天。
结果:所有座椅不受影响,床下空间随意摆放不高于37厘米物件(本人排列放置6个55升整理箱尚余较大空间),床板拆卸叠放快捷方便,占用空间少,全部重量约30kg,床上高个子也能坐直,1.7米以下个子躺坐自如。床边距离后门约20厘米,进入脱鞋方便,亦留有拓宽空间。床拆下来可当桌子用。睡觉翻身没有异响,车辆行驶时床不摇晃,稳固。
注意事项:
1、加工时注意安全,角磨机转速高,无论是使用砂轮片、切割片还是钻头一定要做好防护,佩戴眼镜、手套和口罩。
2、行车时最好用绑带固定床铺或拆卸。
3、行车时床上不要放置高过椅子高度的物件,更不可以躺人!
后备箱长约135厘米,宽约172厘米。若后排座椅背靠放平,座椅高度有56厘米,纵向床留给上部的空间不足以让上身伸直,横向床(靠椅背卡扣)反而变窄。若后排座椅完全前倾,两排之间的空间被椅子完全占去,常用物品和大物件只能置于床板之下,拿取甚为不便,这个布局只能是高个子床纵置的必然选项。结合实际情况(矮个子)选择按原状将后备箱加装横向床铺。
然而,后备箱地板前有C柱凸出,宽度只有160厘米,中有轮拱,各占宽18厘米,后有尾灯柱,不是一个规则的四边形,必须加高至轮拱高度(30厘米)以上,为便于放置整理箱,确定床高40厘米,横向170厘米,纵向120厘米,床横置靠后排座椅背放置,纵向对开便于叠放收纳。
工具:角磨机(带切割片、木锯片、3mm左右钻头、砂轮片),十字螺丝刀
材料:1块厚13~20毫米实木板(切割成120X85厘米2块),4条长65厘米30镀锌角钢,带内丝法兰盘(3或4孔)8个(无6分塑料或橡胶软套头时需16个),相应配15mm自攻螺丝。带丝6分镀锌钢管8根,每根长40厘米。或4.6米(1.7X2+1.2)包边防磕胶条。
制作:
1、设计图纸。
2、材料采购,万能的购物网。
3、自加工,板材:C、D柱处切割,棱、角、面修圆润打磨;C柱处的直线面直接锯割,内圆弧沿弧线钻孔,掰断,用砂轮片磨圆;D柱处弧面靠尾部需要较大修整;角钢两端直立面最好斜切割掉三角形钢皮(见照片二),每10厘米钻孔,边角磨圆。
4、按图装配,车内拼装后检查四周间隙,留5~10毫米左右空(安装胶条或床单压边避免木板磕伤车体)。
费用:包含工具在内的所有物件总额不超过400元,工具和床料可以分别控制在200元以内。
制作时间:1天。
结果:所有座椅不受影响,床下空间随意摆放不高于37厘米物件(本人排列放置6个55升整理箱尚余较大空间),床板拆卸叠放快捷方便,占用空间少,全部重量约30kg,床上高个子也能坐直,1.7米以下个子躺坐自如。床边距离后门约20厘米,进入脱鞋方便,亦留有拓宽空间。床拆下来可当桌子用。睡觉翻身没有异响,车辆行驶时床不摇晃,稳固。
注意事项:
1、加工时注意安全,角磨机转速高,无论是使用砂轮片、切割片还是钻头一定要做好防护,佩戴眼镜、手套和口罩。
2、行车时最好用绑带固定床铺或拆卸。
3、行车时床上不要放置高过椅子高度的物件,更不可以躺人!

图纸设计,左右对称,C、D柱弧面切割,砂轮磨园棱角

30角钢,6分(25mm)带内丝法兰盘

镀锌钢管。若塑料或橡胶套件购买不便,多添购一套法兰盘、管子两端均加工螺纹。

右半边床板背面。角钢距床边约10cm居中安装,注意图左下角是内切割,右下角则是外切割,撑脚位置不要过度靠外,方便拆装。

左半边床板放置图

床板安装视图,左、右、前、后各留约1cm缝隙。为防止床板与车体摩擦,铺床单或胶条压边。

成品安装照。靠后边放置鞋子~穿鞋登车、脱鞋上床。床下55L左右整理箱放置6个没有问题,物件拿取方便。
打开汽车之家 阅读体验更好
举报/纠错