乐驰改床车,无损改装,完美!
- 小时候丑
- 0浏览 · 2021-07-02 23:23· 发布于四川
我又回来啦,2021年,继续开小乐!
你是否曾到处寻找小乐改床车方案?
你是否看见过各种达人把副驾座椅放平,希望能躺平?
你是否直接某宝买了副驾折叠车载床垫?
是的,以上就是我特别想把小乐改床车所干过的事情。
终于,经过许多方案的构思,设计,最终决定了自己给小乐量身定做一个独具特色的车载床车。
要求:强度高,可折叠,纯平,至少1米八左右。
主要是在副驾驶用,也可以在主驾驶用。
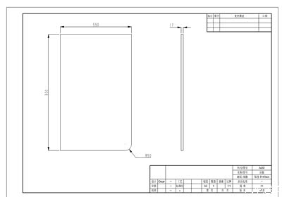
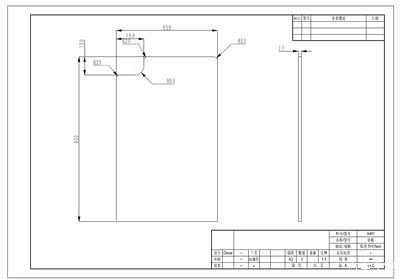
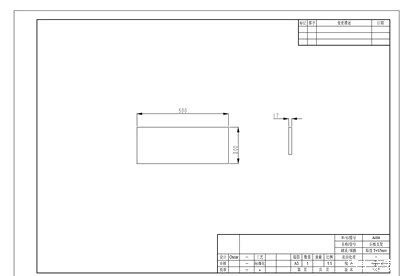
折叠床板为松木材质,宽度55厘米*180厘米,两折,带腿。
体验下来,一点都不晃动,强度非常好。
等不及了吧?看官们。不废话,直接上图。
你是否曾到处寻找小乐改床车方案?
你是否看见过各种达人把副驾座椅放平,希望能躺平?
你是否直接某宝买了副驾折叠车载床垫?
是的,以上就是我特别想把小乐改床车所干过的事情。
终于,经过许多方案的构思,设计,最终决定了自己给小乐量身定做一个独具特色的车载床车。
要求:强度高,可折叠,纯平,至少1米八左右。
主要是在副驾驶用,也可以在主驾驶用。
折叠床板为松木材质,宽度55厘米*180厘米,两折,带腿。
体验下来,一点都不晃动,强度非常好。
等不及了吧?看官们。不废话,直接上图。

因为是两折床板,所以需要先打开,从尾箱往里放。









副驾位置

后排位置

收纳平放状态

收纳立放状态

折叠状态


把折叠床放在主驾驶位置,居然也可以使用。方法稍微不同,也就是说,如果做两套这样的折叠床板,就可以同时在乐驰车里使用。完美!



和某宝车载折叠床对比,我太喜欢自己这个设计了,满满的正能量。


那么,看官们,你们觉得如何呢?这个两折的结构形式非常适合副驾使用,单独出行或者,钓鱼人的理想床车方案,把前后排直接放倒,头枕拿掉,放上床垫就可以用。
费用曝光:
材料费:松木板 4块 定制210 某宝,铰链 6个 65左右 某宝,含螺丝。
人工费:自己干,能算80吗?
设计费:这是原创的,构思很重要。有成就感!算***钱吧。
看官们,报告完毕。
哪天我就带着这样的床车去感受下大自然的美好!
时隔这么久了,还有车友询问尺寸问题,奉上我的设计稿吧。请参考,纯分享,不做技术指导。
费用曝光:
材料费:松木板 4块 定制210 某宝,铰链 6个 65左右 某宝,含螺丝。
人工费:自己干,能算80吗?
设计费:这是原创的,构思很重要。有成就感!算***钱吧。
看官们,报告完毕。
哪天我就带着这样的床车去感受下大自然的美好!
时隔这么久了,还有车友询问尺寸问题,奉上我的设计稿吧。请参考,纯分享,不做技术指导。







加载中